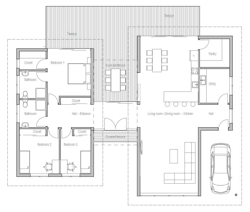
แบบบ้านที่เราจะพามาชมกันในวันนี้เป็นแบบบ้านไสต์ Modern ผสม Loft ลักษณะการออกแบบเหมือนบ้าน 2 หลัง มาต่อกัน หน้ากว้าง 18 เมตร ลึก 14 เมตร พื้นที่ใช้สอย 183 ตารางเมตร ราคาค่าก่อสร้าง ประมาณ 2.2 ล้านบาท ฟังก์ชั้นการใช้งานมีดังนี้
- 3 ห้องนอน
- 2 ห้องน้ำ
- 1 ห้องรับแขก
- 1 ห้องครัว
- 1 ห้องเอนกประสงค์
- 1 จอดรถยนต์
โดยบ้านหลังนี้ออกแบบให้มีลานกิจกรรม (Terrace) ขนาดใหญ่ไว้สำหรับจัดกิจกรรม อีกทั้งห้องรับแขกที่เปิดโล่งสามารถเชื่อมต่อกับห้องรับประทานอาหารได้อย่างสบาย นอกจากนี้หากใครที่ชอบจัดปาร์ตี้ยังสามารถจัดชุดโต๊ะอาหารอีกชุดไว้บริเวณภายนอกได้อีกด้วย อย่ารอช้าเราไปชมกันเลยครับ









ขอบคุณที่มา : concepthome





