บ้านสุดหรูหลังนี้อยู่ที่เมือง Meran ในประเทศอิตาลีค่ะ เป็นฝีมือการออกแบบเนี๊ยบ ๆ จาก monovolume architecture + design มีชื่อว่า The Project M บ้านหลังนี้โดดเด่นและหรูหราด้วยการเลือกตกแต่งบ้านทั้งหลังด้วยสีขาวสว่างตา เสริมด้วยกระจกใสที่นำมาใช้เป็นผนังทุกด้าน ทำให้เมื่อเวลาเปิดไฟในเวลาค่ำคืน แสงไฟที่สาดออกมาจากบ้าน ทำให้บ้านดูสว่างโปร่งใสไปทั้งหลัง สวยจับตาน่ามองมาก ๆ ด้านนอกบ้านยังมีสระว่ายน้ำสีฟ้าใสพร้อมลานอาบแดดด้านข้างดูอบอุ่นสบาย เรียกว่าไม่ใช่แค่สวยอย่างเดียวเท่านั้น ยังน่าอยู่น่าพักผ่อนอีกด้วย
เมื่อเข้าไปด้านในจะพบกับสีขาวสว่างโทนเดียวกับตัวบ้านภายนอก ด้วยสไตล์ลอฟท์ของบ้านจึงเลือกเฟอร์นิเจอร์มาตกแต่งเฉพาะเท่าที่จำเป็น แต่จะเห็นได้ว่าแต่ละชิ้นนั้นสวยเด่นระดับไฮไลท์เลยทีเดียวค่ะ ภายในบ้านสามารถจอดรถได้มากกว่า 4 คัน มีห้องนอน Master Bedroom ขนาดใหญ่ถึง 2 ห้องทั้งส่วนหน้าและหลังของบ้านพร้อมห้องน้ำในตัว และมีห้องนอนขนาดธรรมดาอีก 2 ห้องด้วย แต่ละชั้นมีพื้นที่ห้องพักผ่อนขนาดใหญ่ตกแต่งสวยหรูจับตาทุกห้อง
นอกจากนี้สำหรับคอไวน์ทั้งหลายต้องถูกใจแน่ ๆ เพราะมีห้องเก็บไวน์ขนาดใหญ่พร้อมบาร์ในตัวอยู่ในชั้นใต้ดินด้วยนะคะ
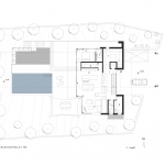
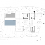
แบบแปลน
ที่มา : Archdaily.com






















































