บ้านหรูสไตล์คอนเทมโพรารี่ในแวนคูเวอร์ โดย Randy Bens Architects
สถาปนิก: Randy Bens
Landscape: Shangrila Landscaping
Contractor: Ruegamer Construction
ภาพถ่ายโดย: Ema Peter Photography
ที่มา : Contemporist.com
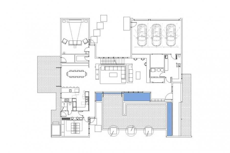
ชมบ้านหรูในแวนคูเวอร์กันอีกสักหลังนะคะ บ้านหลังนี้เป็นฝีมือการออกแบบของสถาปนิกเลื่องชื่อ Randy Bens โดยได้ออกแบบให้เป็นบ้านพักสำหรับครอบครัว ปลูกสร้างอยู่ทางฝั่งตะวันตกของเมืองแวนคูเวอร์ ประเทศแคนาดา นอกจากโครงสร้างภายนอกที่โดดเด่นแล้ว สวนหย่อมรอบบ้านก็ยังเต็มไปด้วยพืชพันธุ์ที่หลากหลาย และ Hardscape ที่สวยงามเข้ากับตัวบ้านได้ดี
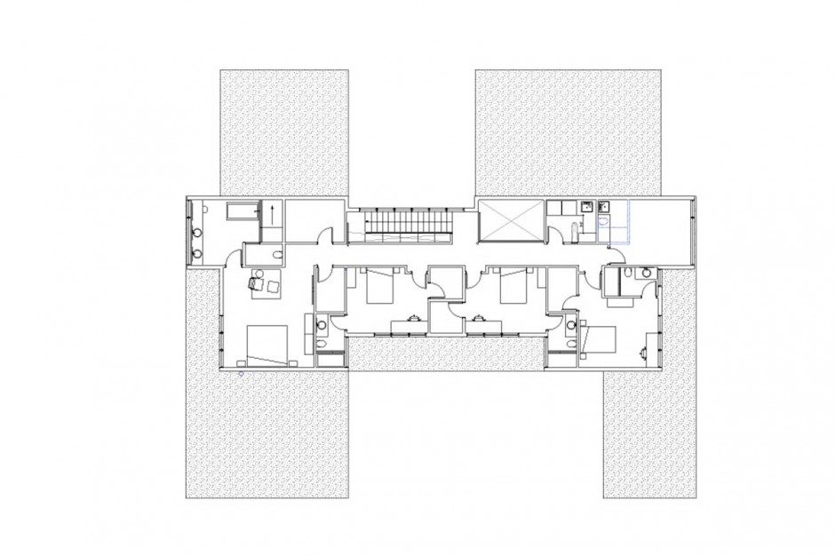
รูปทรงของบ้านหากมองจากแปลนแล้วจะเห็นว่าออกแบบเป็นรูปตัว H ค่ะ Façade ด้านนอกตกแต่งด้วยอลูมิเนียมคอมโพสิตสีเทาโทนกลาง ๆ แซมด้วยผนังกระจกช่องแสงและผนังไม้สีโทนน้ำตาลแดงดูหรูหรา และลดความแข็งกระด้างของอลูมิเนียมลงได้อีกมาก เมื่อเข้าสู่ด้านในจะพบกับความสงบร่มเย็นอย่างไม่น่าเชื่อ ชั้นล่างเป็นพื้นที่สำหรับพักผ่อนส่วนรวมของครอบครัว แบ่งฟังค์ชั่นการใช้สอยต่าง ๆ ไว้อย่างสุดหรู มีห้องโฮมเธียเตอร์ขนาดใหญ่แยกต่างหาก โถงกลางบ้านออกแบบเป็นห้องพักผ่อนสวยโมเดิร์นด้วยโซฟาชุดใหญ่สีดำ พื้นที่บริเวณนี้เป็นจุดศูนย์กลางของชั้นล่างก็ว่าได้
สำหรับชั้นบนนั้น จัดแบ่งพื้นที่ออกเป็นห้องนอนได้ถึงสี่ห้องด้วยกัน มาพร้อมห้องน้ำในตัวและ Walk-in Closet ในแต่ละห้องอีกด้วยค่ะ


















Visitor Rating: 5 Stars