เปลี่ยนบ้านยุค 1980 ให้เป็นบ้านสวยสไตล์คอนเทมโพรารี่ในแวนคูเวอร์
ที่มา : Contemporist.com
สถาปนิก และออกแบบภายใน: D’Arcy Jones Architecture Inc
ภาพถ่ายโดย : Sama Jim Canzian
บ้านหลังนี้นั้นเป็นบ้านที่ถูกปลูกสร้างมาตั้งแต่ยุค 1980s แล้วค่ะ ถูกนำมาปรับปรุงรีโนเวทใหม่เพื่อให้เหมาะสมกับการใช้ชีวิตในปัจจุบัน และเป็นการซ่อมแซมส่วนที่เสื่อมโทรมไปด้วยในตัว บ้านหลังนี้ถูกออกแบบใหม่โดย D’Arcy Jones Architecture ค่ะ สวยเข้ากับยุคสมัยมากเลยทีเดียว
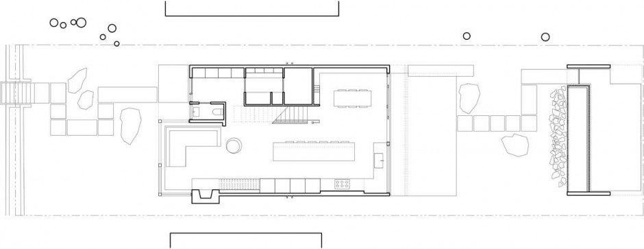
ตัวบ้านนั้นใช้โครงสร้างเสาและคานเดิมของบ้านเพราะยังมีความแข็งแรงได้มาตรฐานอยู่ แล้วยังตกแต่งบริเวณ Hardscape ภายนอกใหม่ให้ทันสมัยด้วย ตัวบ้านนั้นตกแต่งด้วยสีเทาเข้มสลับกับช่องแสงกระจกขนาดใหญ่ และบางช่วงยังเลือกใช้ไม้สีอ่อนมาตกแต่งแซมเพื่อให้ดูอ่อนโยนลง บริเวณสวนหล่อทางเดินคอนกรีตเป็นสเต็ปไล่ระดับเป็นขั้นๆ ผ่านสวนหินและมอสด้านนอก
ภายในบ้านสว่างและนุ่มนวลตากว่าภายนอกมากนัก ชั้นล่างจัดเป็นพื้นสำหรับครอบครัว มุมด้านหน้าบ้านจัดไว้สำหรับเป็นห้องนั่งเล่น จัดโซฟาทรงตัวแอลสีครีมไว้ชิดช่องแสงหน้าต่างและเตาผิง รับบรรยากาศสดชื่นจากสวนและไออุ่นจากเตาผิงได้ ส่วนด้านในลึกเข้าไปนั้นเป็นพื้นที่ของห้องครัวและรับประทานอาหาร จัดเคาน์เตอร์ครัวและซิงค์ล้างจานไว้ใกล้กระจกช่องแสงขนาดใหญ่ จึงรักษาอนามัยได้อย่างดีเยี่ยมนอกจากนี้ยังมีลานปูนบริเวณสวนด้านนอก สำหรับรับประทานอาหารตอนเช้า หรือจะต้อนรับแขกสบาย ๆ ก็ยังได้อีกเช่นกันด้วย














