Madison Park house บ้านไม้สีขรึมบนเนินเขาใน Seattle
ที่มา: Contemporist.com
Architect: First Lamp
Contractor: First Lamp
Photography by Tim Bies Photography
สำหรับที่ดินบนเนินเขาใน Seattle แล้วต้องถือว่าเป็นทำเลที่ดีและเหมาะสมมากสำหรับการสร้างบ้านเลยทีเดียว เพราะมีอากาศที่กำลังดีตลอดทั้งปี หน้าฝนก็ไม่มีพายุรุนแรงมากนักจนเป็นอันตรายจากดินถล่ม ในฤดูร้อนยังได้รับลมเย็น ๆ ที่พัดมาอยู่โดยรอบด้วย อย่างบ้านหลังนี้เป็นต้นค่ะ Madison Park house นั้นปลูกสร้างอยู่บนเนินเขาแห่งนี้ เป็นบ้านสามชั้นห้าระดับที่ออกแบบอย่างสวยงามด้วยฝีมือของสถาปนิกจาก First lamp
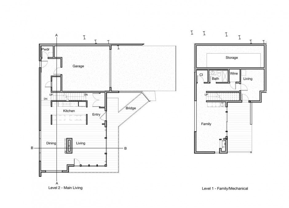
โครงสร้างของตัวบ้านตั้งอยู่บนเนินเขาที่เป็นดิน จึงจำเป็นต้องใช้เสาเข็มเจาะในการก่อสร้าง ส่วนโครงสร้างด้านบนเหนือดินจะนำเอาโครงสร้างเหล็กมาเป็นส่วนประกอบหลักด้วย ตกแต่งด้วยไม้สีโทนเข้มเส้นขนาดเล็กตีชิดในแนวดิ่ง เจาะช่องแสงเป็นระยะ สวยงามเฉียบคมไม่ต่างจากงานศิลปะชั้นดี มีที่จอดรถอยู่ในตัวบ้านอีกด้วย
สำหรับการจัดฟังค์ชั่นภายในบ้านนั้นจะออกแบบให้ชั้นล่างสุดและชั้นที่กลางซึ่งสามารถเข้าได้จากทางถนนใหญ่นั้นเป็นส่วนของห้องนั่งเล่นสำหรับครอบครัว มีห้องรับประทานอาหารและห้องครัวอยู่ในบริเวณเดียวกันนี้ด้วย ตกแต่งภายในสวยหรูด้วยวัสดุและเฟอร์นิเจอร์ทันสมัย สว่างและรับชมวิวได้รอบทิศทางเพราะผนังรอบด้านติดตั้งกระจกช่องแสงไว้โดยรอบ
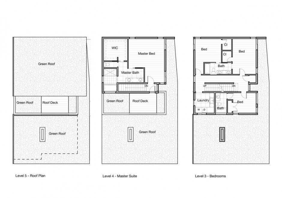
สำหรับระดับชั้นบนจะเป็นพื้นที่สำหรับห้องนอนอีกสองชั้นค่ะ รวมมีห้องนอนในบ้านถึง 4 ห้องด้วยกัน ตกแต่งเน้นความเรียบง่ายด้วยสีขาวและสีเทาประปราย มาพร้อมห้องน้ำและ Walk-in Closet ในตัวที่ตกแต่งอย่างสวยหรูเข้ากับส่วนอื่น ๆ ของบ้านได้อย่างลงตัวเลยทีเดียวค่ะ




















