สำหรับในต่างประเทศ การต่อรถพ่วงเพื่อไปตั้งแค้มป์ตามต่างจังหวัดถือเป็นเรื่องธรรมดามากนะคะ แถมอุทยานแห่งชาติทุกแห่งก็จะจัดเตรียมทั้งระบบไฟฟ้า น้ำประปา และสุขาภิบาลไว้ให้รถพ่วงเหล่านี้พร้อมเลยด้วย สำหรับในเมืองไทยเอง รถพ่วงในรูปแบบนี้ก็มักจะดัดแปลงมาใช้เป็นร้านกาแฟ หรือโฮมออฟฟิศซะมากกว่า แต่อย่างไรก็ดีก็ยังสามารถดัดแปลงแบบมาใช้เป็นบ้านขนาดเล็กได้ด้วย ลองดูไอเดียจากบ้านรถพ่วงหลังนี้กันค่ะ
สำหรับแบบบ้านหลังนี้ หากไม่ได้สังเกตเห็นล้อรถพ่วงแล้วก็อาจจะคิดว่าเป็นบ้านรีสอร์ทได้นะคะ ตัวบ้านและฐานบ้านภายนอกเป็นโครงรถพ่วงขนาดใหญ่ มีหลังคาที่ลาดเอียงจากด้านหน้าไปสู่ด้านหลัง มองดูคล้ายลิ่ม ตกแต่งผนังภายนอกด้วยไม้เก่านำมาปะแต่งในสไตล์แอนทีค ด้านหน้าสุดของบ้านจะเป็นส่วนระเบียงที่มีราวเหล็กกันตกล้อมเอาไว้ จัดโต๊ะเก้าอี้มานั่งสบายได้
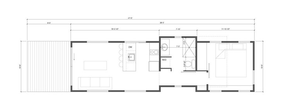
สำหรับภายในจะมีลักษณะเป็นห้องยาว แบ่งพื้นที่ส่วนด้านหน้าสุดเป็นห้องนั่งเล่น ตกแต่งสวยสไตล์ Industrial loft ด้วยเฟอร์นิเจอร์ไม้ชิ้นหนาหนัก อย่างโต๊ะกลางขาล้อเหล็ก รวมทั้งโซฟาหนักสีเข้มเท่ จัดมุมผนังช่วงกลางบ้านเป็นชุดครัวขนาดกำลังพอดี สามารถเตรียมอาหารได้จริง ช่วงกลางของบ้านเป็นห้องน้ำ ที่แบ่งพื้นที่ใช้สอยเหมือนในบ้านจริง ๆ มาพร้อม Shower Box สำหรับส่วนอาบน้ำด้วย ส่วนด้านในสุดนั้นจะเป็นส่วนของห้องนอนค่ะ เมื่อดูฟังค์ชั่นการใช้สอยแล้วจะเห็นว่าไม่ต่างกับอพาร์ทเม้นท์หรือคอนโดขนาดเล็กเลย ใครที่มีบ้านพื้นที่แคบ จะนำเอาแปลนบ้านหลังนี้ไปดัดแปลงก็ได้เหมือนกันนะคะ
ที่มาและภาพประกอบ “แบบบ้านเคบินหลังน้อยแต่งไม้ทรงลิ่ม ภายในสวยเท่“: 1, 2













