บ้านสีขาวสไตล์คอนเทมโพรารี่ริมแม่น้ำ Thames ในประเทศอังกฤษ
ที่มา : Contemporist.com
Design: Selencky Parsons
Photography by Jim Stephenson
บ้านสวยหรูหลังนี้ปลูกสร้างอยู่บนพื้นที่ริมฝั่งแม่น้ำ Thames ในเมือง Oxford ประเทศอังกฤษค่ะ เป็นผลงานการออกแบบของ Selencky parsons สีขาวของบ้านสวยสว่างสง่างาม จนใครที่ได้เห็นก็ไม่อาจละสายตาได้ ภายนอกบ้านยังตกแต่งด้วยไม้ระแนงเป็นเส้น ๆ กระจายเป็นระยะ ช่วยสร้างความเป็นส่วนตัวให้ผู้อยู่อาศัย และยังเพิ่ม Texture ที่น่าสนใจให้กับบ้านมากขึ้น
การออกแบบเน้นความโปร่งรับวิวของสระว่ายน้ำและอากาศในบริเวณรอบข้างได้ จึงมีช่องแสงกระจกและช่องโล่งเป็นจำนวนมากให้ลมพัดได้อย่างสะดวก ผนังบ้านส่วนที่หันเข้าสู่สระว่ายน้ำและสนามหญ้าด้านในจะออกแบบให้เป็นกระจกบานเลื่อนขนาดใหญ่ เปิดรับอากาศสบาย ๆ ได้ในมุมมองที่เป็นส่วนตัว บริเวณชั้นกลางของบ้านถือเป็นชั้น Main Floor ที่รวมเอาพื้นที่พักผ่อนไว้ด้วยกัน แยกมุมรับแขกและห้องทำงานออกไว้อีกต่างหาก จัดพื้นที่ห้องครัวและรับประทานอาหารไว้ต่อเนื่องกับสระว่ายน้ำด้วย
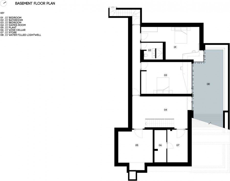
ตัวบ้านมีสามชั้นด้วยกันค่ะ มีชั้นใต้ดินด้วย จึงสามารถกระจายห้องนอนทั้งห้าห้องไว้ตามชั้นต่าง ๆ ได้ สำหรับชั้นใต้ดินนั้นอาจใช้เป็นห้องนอนสำรองสำหรับแขกหรือญาติผู้มาเยือน มีห้อง Game Room และห้องเก็บไวน์ไว้สำหรับสังสรรค์อย่างเป็นส่วนตัวปลอดจากเสียงรบกวนอยู่ที่ชั้นใต้ดินอีกด้วยนะคะ























