บ้านโมเดิร์นสำหรับครอบครัวคนรุ่นใหม่จากออสเตรเลีย
ที่มา : Contemporist.com
ออกแบบ: In2
ทางฝั่งทวีปออสเตรเลียเองก็มีบ้านโมเดิร์นที่น่าสนใจเช่นกันนะคะ บ้านหลังนี้ออกแบบโดยบริษัทออกแบบ In2 ซึ่งเป็นสถาปนิกชื่อดังเจ้าถิ่นในออสเตรเลียนั่นเองค่ะ ตัวบ้านโดดเด่นด้วยโครงสร้างเหล็กที่ล้อมเป็นกรอบอยู่รอบช่องแสงเป็นหลุมลึกลงไปด้านใน สีแดงสดของโครงสร้างส่วนนี้เป็นจุดเด่นของบ้านจนใคร ๆ ก็ต้องจำได้อย่างแน่นอน
ภายในบ้านมีพื้นที่ใช้สอยเป็นจำนวนมากเลยทีเดียวค่ะ แล้วยังมีถึงสามชั้นด้วยกัน เพราะเจาะช่องล่างเป็นชั้นใต้ดินด้วย บริเวณรอบนอกบ้านจัดสวนหย่อมไล่ระดับกันสวยงามยิ่งขับความสวยงามให้กับบ้านมากขึ้นไปอีก ตัว façade ภายนอกของบ้านนั้นตกแต่งด้วยวัสดุหลากหลายชนิด ที่โดดเด่นนอกจากจะเป็นโครงสร้างกรอบเหล็กสีแดงแล้วก็จะมีแผงตะแกรงเหล็กสีดำเหนือประตู รวมทั้งผนังด้านรอบบ้านนอกจากจะเป็นผนังฉาบเรียบทาสีขาวแล้วก็ยังนำกระจกช่องแสงมาเสริมช่วยให้บ้านโปร่งและสว่างมากขึ้น
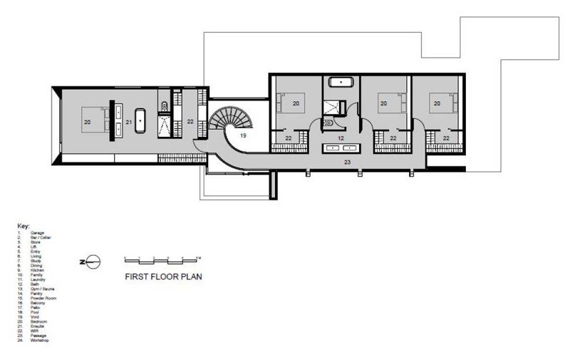
ภายในบ้านตกแต่งด้วยเฟอร์นิเจอร์และไอเท็มในสไตล์โมเดิร์นสีสันสดใส ชั้นล่างสุดของบ้านเป็นพื้นที่สำหรับจอดรถแล้วยังมีไวน์บาร์ และห้องเก็บไวน์ไว้สำหรับเอนเตอร์เทนในครอบครัวและหมู่เพื่อนฝูงได้ ชั้นกลางซึ่งเป็นชั้นระดับพื้นดินนั้นจะเป็นพื้นที่ของห้องนั่งเล่น ห้องครัวและรับประทานอาหารถือเป็นพื้นที่พักผ่อนส่วนกลางของครอบครัว ชั้นบนสุดมีห้องนอนถึง 5 ห้องด้วยกันเลยทีเดียวค่ะ เหมาะมากสำหรับครอบครัวขนาดใหญ่หรือครอบครัวที่วางแผนจะขยายขนาดให้มากขึ้นในอนาคต

























