โดยมากเรามักพบว่าบ้านสไตล์โมเดิร์นโดยทั่วไป มักจะนำเอากระจกมาตกแต่งผนังภายนอกบ้านให้บ้านดูโปร่ง แต่วันนี้เราจะพาคุณผู้อ่านไปพบกับความโมเดิร์นในอีกรูปแบบ ที่แม้จะไม่โปร่งใสเหมือนบ้านหลังอื่น แต่ก็สวย และน่าจะเหมาะสมกับครอบครัวที่รักความเป็นส่วนตัวมากด้วยค่ะ
บ้านหลังนี้เป็นผลงานการออกแบบจาก Metaform Architects ปลูกสร้างอยู่ในประเทศลักแซมเบิร์ก มีลักษณะเป็นบ้านตึกสามชั้น ผนังสีขาวสะอาดโดยรอบแซมด้วยสีเทาเป็นบางส่วน ส่วนชั้นล่างสุดยังเปิดผนังบริเวณห้องนอนใหญ่ออกสู่สนามหญ้าได้กว้าง ปูพื้น Deck ไม้สีอ่อน ดูอบอุ่นน่าพักผ่อนริมสนามหญ้า ชั้นสองติดตั้งผนังกระจกมุมห้องโถง จึงเหมาะกับการจัดพื้นที่เป็นห้องรับแขก หรือห้องนั่งเล่นที่อบอุ่นได้
การจัดฟังค์ชั่นภายในบ้านหลังนี้ก็เหมาะสมกับครอบครัวขนาดกลางถึงขนาดใหญ่ได้อีก เพราะมีห้องนอนในบ้านถึง 5 ห้องด้วยกัน ใช้พื้นที่ชั้นล่างเป็นห้องนอนใหญ่ที่มีห้องน้ำในตัว อีกครึ่งหนึ่งใช้เป็นพื้นที่ห้องซักล้างและโฮมออฟฟิศขนาดใหญ่ ส่วนชั้นสองจะเป็นพื้นที่ห้องนั่งเล่น ครัว และรับประทานอาหารของครอบครัว ชั้นบนสุดนั้นใช้เป็นพื้นที่ห้องนอนถึง 4 ห้องด้วยกัน การตกแต่งภายในเน้นวัสดุที่มีสีอ่อนแต่ให้ลุคโมเดิร์น สว่างน่าอยู่ ในขณะที่ก็ดูแลรักษาได้ง่ายอีกด้วยล่ะค่ะ
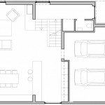
แบบแปลน
ที่มา : Archdaily.com













