แบบบ้านจากตู้คอนเทนเนอร์แต่งสวยอบอุ่นด้วยไม้
ที่มา: Busyboo.com
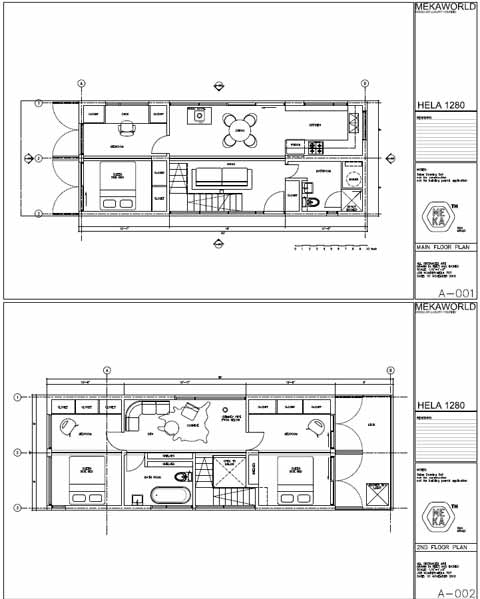
เดี๋ยวนี้มีกระแสการนำเอาตู้คอนเทนเนอร์เก่ากลับมาใช้งานใหม่กันมากขึ้นนะครับ ลดโลกร้อน นำเอาวัสดุเก่ามาหมุนเวียนให้เกิดประโยชน์มากขึ้นได้ ทั้งการนำเอามาสร้างเป็นบ้านพัก เป็นร้านค้า เป็นห้องสมุด หรือสำนักงานก็ได้ มีรูปลักษณ์ทันสมัยและยังมีราคาที่ประหยัดอีกด้วย เปิดโอกาสให้เจ้าของหรือผู้ออกแบบได้สร้างสรรค์ไอเดียใหม่ ๆ ในการตกแต่งบ้านของตัวเองให้มีเอกลักษณ์อย่างไรก็ได้ วันนี้นำเอาแบบบ้านที่สร้างจากตู้คอนเทนเนอร์มาฝากหลายแนวค่ะ ตกแต่งด้วยไม้และกระจกจนสวยงาม มีทั้งแบบชั้นเดียว สองชั้น สองตอน หากคุณกำลังมองหาไอเดียการสร้างบ้านจากตู้คอนเทนเนอร์อยู่ ต้องไม่พลาดโดยเด็ดขาดเลยนะครับ












