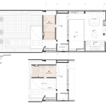
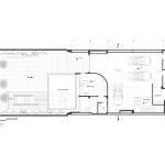
เราอาจจะเคยเห็นตึกที่หมุนแบบอิสระได้ แต่ในดูไบกันนะครับ วันนี้พบกับบ้านรูบิคที่สามารถบิดหมุนพื้นที่ห้องได้จากประเทศอิหร่านกันบ้าง โดยบ้านหลังนี้เป็นแมนชั่นสูง 7 ชั้น ออกแบบให้มีบล็อกที่สามารถบิดหมุนได้ 90 องศา เพื่อตอบสนองสภาพอากาศที่แตกต่างกันอย่างรุนแรงในกรุงเตหะราน เพราะเวลาที่เข้าหน้าร้อนก็มีอุณหภูมิสูงถึง 40 องศาเซลเซียส ในขณะที่หน้าหนาวก็หนาวจนถึงจุดเยือกแข็งเลยทีเดียว
โดยการทำงานของบล็อกที่หมุนได้นี้จะเป็นระบบสวิทช์เปิด-ปิดได้ตามต้องการ เมื่อกดสวิทช์ “เปิด” บล็อกก็จะหันด้านที่เป็นระเบียงกระจกออกสู่ด้านนอกของบ้าน สามารถรับแสงแดดอุ่น ๆ ในฤดูร้อนและลมพัดสบาย ๆ ได้ ในขณะที่เมื่อกดปุ่ม “ปิด” บล็อกก็จะหมุนหันด้านที่ปิดทึบด้วยผนังไม้ออกสู่ด้านหน้าอาคาร ช่วยปกป้องอากาศที่หนาวเย็น และสายลมกระโชกแรงในฤดูหนาว ซึ่งระบบการหมุนบล็อกของแต่ละห้องนั่น ดัดแปลงจาก Rotating Set ที่ใช้ในโรงภาพยนตร์ หรือในโชว์รูมรถยนต์นั่นเอง
นอกจากเทคโนโลยีสุดยอดในบ้านรูบิคแห่งนี้แล้ว สิ่งอำนวยความสะดวกในบ้านก็ตอบสนองชีวิตที่สุดหรูเช่นกัน มีทั้งฟิตเนส สระว่ายน้ำ หรือ Wellness Area ครบครัน พร้อมที่จอดรถชั้นล่าง ห้องพักของแม่บ้านในตัว แล้วยังเป็นบ้านอีกหลังที่ได้รับเสนอชื่อเข้ารับรางวัลการออกแบบสถาปัตยกรรมอีกด้วยครับ
ที่มา: Dailymail, cnn,Gizmag,
Image: Nextoffice




































