Green Bean House บ้านไม้สีซีดสวยด้วยระแนงโปร่งทั้งหลังจาก Onsala ประเทศสวีเดน
ที่มา : Contemporist.com
Design: Arctic Studio
Photography by Carl Ander
มองจากภาพนั้น จะว่าไปแล้วบ้านหลังนี้ก็เหมาะสำหรับเมืองไทยเหมือนกันนะคะ เพราะทั้งหลังนั้นตกแต่งด้วยผนังไม้ที่มีความโปร่ง อากาศจึงถ่ายเทได้ดี เจาะช่องแสงประตูหน้าต่างกระจกขนาดใหญ่เป็นระยะรอบบ้าน จึงไม่อับทึบแม้จะมีสีโทนเทาดำก็ตาม รอบนอกบ้านยังตัดแต่งเนินดินและปลูกต้นไม้ให้ความสวยงามร่มรื่นอีกด้วย
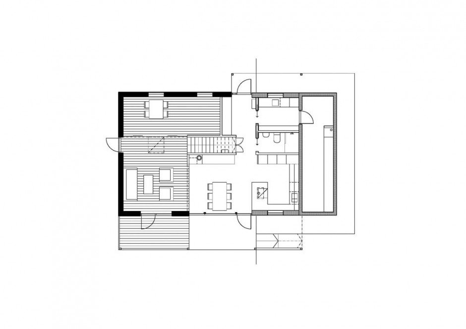
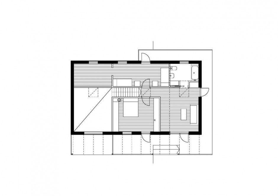
บ้านหลังนี้ออกแบบโดย Arctic Studio ค่ะ ปลูกสร้างอยู่ในเมือง Onsala ประเทศสวีเดน คอนเซปต์หลักของบ้านก็คือการเน้นพื้นที่พักผ่อนให้มีขนาดใหญ่และมีหลายจุด เพื่อรองรับสมาชิกในครอบครัวทุกคนไว้ได้ จะเห็นได้ว่านอกจากบริเวณสนามหญ้ากว้าง ๆ ที่น่านั่งเล่นนอนเล่นแล้ว ก็ยังมีเฉลียงไม้กว้าง ๆ บริเวณชั้นสองอีกจุดด้วยที่น่าออกมานั่งเล่นตากอากาศสบาย ๆ หมดห่วงไปได้เลยหากต้องการจัดปาร์ตี้ในบ้าน เพราะพื้นที่มีเพียงพออย่างแน่นอน
การตกแต่งภายในเป็นแนวสแกนดิเนเวียนค่ะ แต่งผนังด้วยไม้สีโทนกลาง ๆ กับพื้นสีอ่อนเหมือนเป็นพื้นรองรับเฟอร์นิเจอร์สีสดใสและเส้นสายที่ทันสมัย ปลอดโปร่งน่าอยู่มากเลยทีเดียวค่ะสำหรับแบบบ้านหลังนี้












