ไอเดียแบบบ้านสำเร็จรูป Prefab แนวโมเดิร์นสองชั้นจาก Pb Elemental
ที่มา: Freshome.com
ออกแบบโดย Studio Pb Elemental
ภาพ: SeeVirtual
ไม่อยากเชื่อก็ต้องเชื่อค่ะว่าบ้านสไตล์โมเดิร์นหลังนี้เป็นบ้านสำเร็จรูปหรือบ้าน Prefab นั่นเอง ออกแบบโดย Studio Pb Elemental ซึ่งมีสำนักงานอยู่ในซีแอตเติล โดยบ้านหลังนี้มีชื่อว่า Beachaus I ซึ่งเป็นหนึ่งในโครงการ InHaus Development นอกจากสวยงามทันสมัยแล้วยังได้รับการออกแบบให้ประหยัดพลังงาน รักษาสิ่งแวดล้อมอีกด้วย
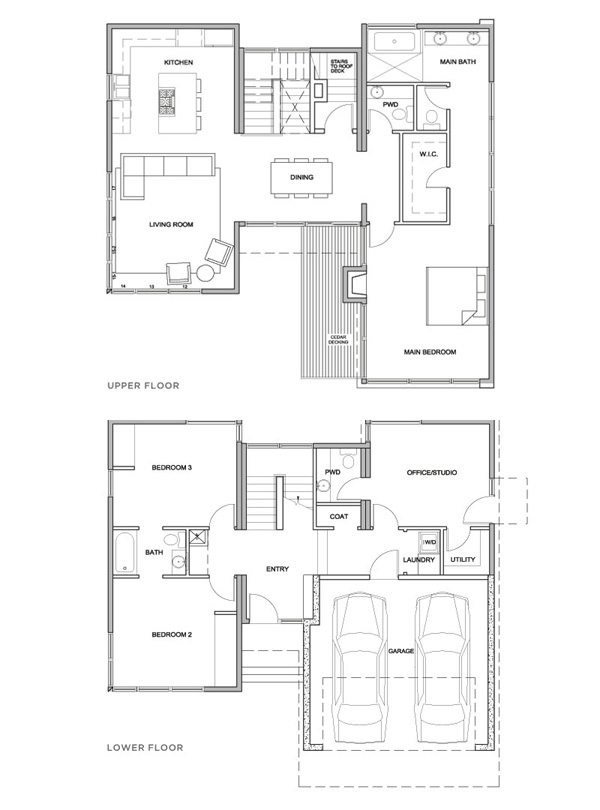
บ้านหลังนี้มีพื้นที่ใช้สอยทั้งหลังประมาณ 2,085 ตารางฟุตค่ะ แบ่งออกเป็น 3 ห้องนอนและ 4 ห้องน้ำ มาพร้อมออฟฟิศ หรือสตูดิโอทำงานได้ในตัว ชั้นล่างสามารถจอดรถได้สองคันแบบสบาย ๆ ออกแบบให้ใช้ระบบการถ่ายเทอากาศแบบ HRV System เลือกใช้หน้าต่างที่มีคุณภาพสูงป้องกันความร้อนและความชื้นได้ยอดเยี่ยม ผนังบ้านโดยรอบฉีดโฟมฉนวนกันความร้องทั้งหลัง บนหลังคามีระบบเก็บกักน้ำฝนสำหรับนำกลับมารดน้ำต้นไม้และสนามหญ้าได้
รอบบ้านตกแต่งด้วยกระจกใสเพื่อให้ใช้แสงสว่างจากดวงอาทิตย์ได้ในเวลากลางวัน ผนังภายนอกบ้านส่วนตกแต่งด้วยระแนงไม้ลดความแข็งกระด้างของบ้านทรงเหลี่ยม ๆ ลงได้ สำหรับภายในนั้นพื้นบ้านปูด้วยไม้ไผ่อัดลวดลายสวยงาม มาพร้อมการเลือกใช้เฟอร์นิเจอร์สไตล์โมเดิร์นที่เข้ากันได้อย่างลงตัว ชั้นล่างแบ่งออกเป็นห้องนอนได้สองห้องเล็ก มีออฟฟิศอยู่มุมด้านหลังบ้าน ส่วนชั้นบนนั้นเป็นห้องนั่งเล่นขนาดใหญ่รวมเอาห้องครัวและรับประทานอาหารไว้ด้วยกัน ด้านขวาของบ้านเป็นห้องนอนใหญ่ Master Bedroom ที่มาพร้อมห้องน้ำและ Walk-in Closet ในตัวอีกด้วย























