หลายคนคงคิดว่า “สีดำ” ทำให้บ้านไม่น่าอยู่ดูหม่นหมอง และทำให้บรรยากาศภายในบ้านดูอึดอัดคับแคบเกินไป นั่นอาจเป็นสาเหตุให้คนไม่นิยมการตกแต่งบ้านโดยสีดำเท่าไหร่นัก
แต่วันนี้ แอดมินขอนำเสนอ ไอเดียแบบบ้านโทนสีดำที่น่าสนใจ เหมาะแก่การนำไปเป็นไอเดีย การตกแต่งบ้านของคุณเป็นอย่างยิ่ง บ้านหลังนี้เป็นบ้านแนว Contemporary หรือ แนวร่วมสมัยนั่นเอง โดยสีหลักของตัวบ้านภายนอกเป็นสีดำ และมีสีเหลือง เป็นสีตัดตามช่องหน้าต่างและประตู เลยทำให้ดูมีความโดดเด่นและมิติมากขึ้นด้วย

ตัวบ้านร่วมสมัยโทนสีดำ

ตัวบ้านร่วมสมัยโทนสีดำ

ตัวบ้านร่วมสมัยโทนสีดำ

ตัวบ้านร่วมสมัยโทนสีดำ
ภายในตัวบ้าน ฝาผนังโทนสีอ่อน ทำให้ภายในบ้านดูสว่างและกว้างมากขึ้นอีกด้วย

แบบบ้านร่วมสมัย 2 ชั้น ภายในบ้าน

แบบบ้านร่วมสมัย 2 ชั้น ภายในห้องครัว
แบบบ้านร่วมสมัย 2 ชั้น

แบบบ้านร่วมสมัย 2 ชั้น โซนบันได

แบบบ้านร่วมสมัย 2 ชั้น ภายในห้องน้ำ

แบบบ้านร่วมสมัย 2 ชั้น
บรรยากาศภายนอกบ้านยามค่ำคืน

แบบบ้านร่วมสมัย 2 ชั้น โทนสีดำ ยามค่ำคืน

แบบบ้านร่วมสมัย 2 ชั้น โทนสีดำ ยามค่ำคืน

แบบบ้านร่วมสมัย 2 ชั้น โทนสีดำ ยามค่ำคืน

แบบบ้านร่วมสมัย 2 ชั้น โทนสีดำ
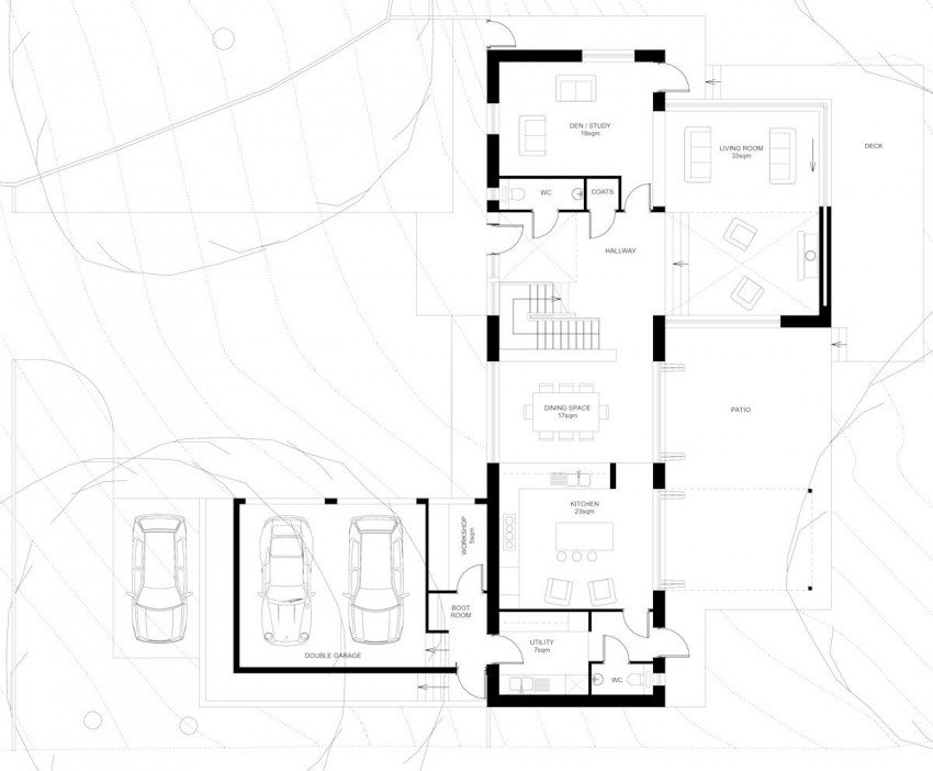
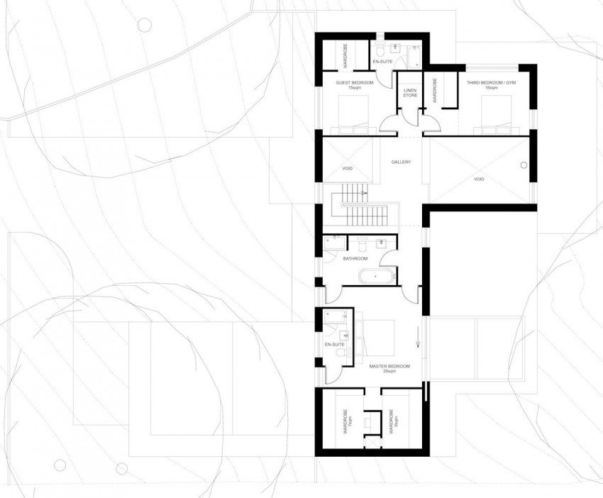
แบบแปลน แบบบ้านร่วมสมัย 2 ชั้น โทนสีดำ

แบบแปลน แบบบ้านร่วมสมัย 2 ชั้น โทนสีดำ

แบบแปลน แบบบ้านร่วมสมัย 2 ชั้น โทนสีดำ

แบบแปลน แบบบ้านร่วมสมัย 2 ชั้น โทนสีดำ

แบบแปลน แบบบ้านร่วมสมัย 2 ชั้น โทนสีดำ

แบบแปลน แบบบ้านร่วมสมัย 2 ชั้น โทนสีดำ
พอจะมีไอเดียการตกแต่งบ้านในฝันกันบ้างแล้วหรือยังครับ กับ แบบบ้านร่วมสมัย 2 ชั้น Contemporary Style บ้านโทนสีดำ
ขอขอบคุณภาพและเนื้อหาต้นฉบับ http://www.homedsgn.com
หากคุณชื่นชอบไอเดียนี้ อย่าลืมกด Like หรือ Share ได้นะครับ 🙂








