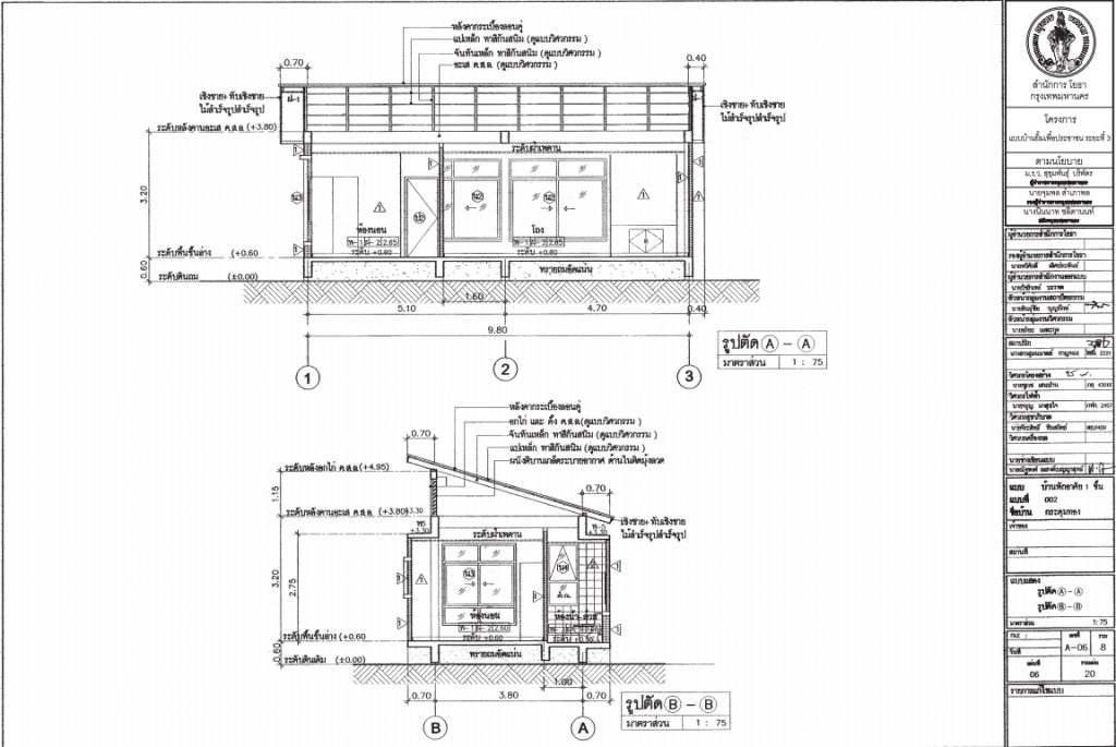
ดาวน์โหลดแบบบ้านชั้นเดียว “กระดุมทอง” แบบบ้านฟรี แบบบ้านชั้นเดียวราคาไม่เกิน 1 ล้านบาท
บ้าน 1 ชั้น 1ห้องนอน 1 ห้องน้ำ
พื้นที่ใช้สอย 45 ตร.ม.
ขนาดพื้นที่ขั้นต่ำ กว้าง 7.6 เมตร ลึก 13.2 เมตร
งบประมาณในการก่อสร้าง 382,500 บาท



ดาวน์โหลดแบบบ้านชั้นเดียว “กระดุมทอง” แบบบ้านฟรี แบบบ้านชั้นเดียวราคาไม่เกิน 1 ล้านบาท
บ้าน 1 ชั้น 1ห้องนอน 1 ห้องน้ำ
พื้นที่ใช้สอย 45 ตร.ม.
ขนาดพื้นที่ขั้นต่ำ กว้าง 7.6 เมตร ลึก 13.2 เมตร
งบประมาณในการก่อสร้าง 382,500 บาท


